Dokumentation

Sie benötigen Dokumentation/Konstruktion ?

  • Sie wollen Kosten sparen ?
  • Sie haben kein 3D-Programm ?
  • Ihr benötigter Büroaufwand für Dokumentation und Konstruktion liegt jährlich unter 1000 Stunden; es rechnet sich somit nicht, jemanden einzustellen

Sehen Sie uns als Ihre Abteilung

  • wir überarbeiten Ihre Zeichnungsunterlagen mit unserem 3D-Programm (ob Teileauf-nahme, Skizzen, Handzeichnungen oder 2D-Zeichnungen)
  • wir führen konstruktive Optimierungsarbeiten vorhandener Baugruppen durch
  • wir entwickeln neu von der Idee bis zur Fertigung
  • Wir überprüfen den aktuellen Stand von Zeichnungen und Produkt

Sie nutzen

  • unsere Erfahrung bei Dokumentation und Konstruktion (seit 1985)
  • mit unserer Kapazität von monatlich 600 Stunden können wir kurzzeitig auch größere Projekte verwirklichen

Möglichkeit der Zusammenarbeit

  • Sei erhalten unsere 3D-Dateien im PDF-Format (je nach Bedarf auch in DWG-, DXF,- ACIS- IGES-, STL, usw. -Format)
  • Sie benötigen für das PDF-Format nur den kostenlosen Acrobat Reader
  • Sie können die Zeichnungen ansehen und ausdrucken
  • Sie erhalten nach vereinbarten Zeitabständen eine CD mit unseren 3D-Leistungen
  • natürlich liefern wir die Zeichnungen auch in Papier

Kostenersparnis bei Ihnen

  • Sie brauchen keinen teuren Rechner
  • Sie brauchen keine teueren Lizenzen für 3D-Programme
  • Sie brauchen keine geschulten Programmanwender
  • Sie zahlen nur den wirklich benötigten Stundenaufwand

Verwendungsmöglichkeiten von
3D-Zeichnungen

Fertigungszeichnung
- als Schweißteil für Fertiger
- mit Datensatz für FEM-Berechnungen

Fertigungszeichnung
- als Gussteil
- mit Datensatz für Modellbauer
- mit Datensatz für Werkzeugbauer
- mit Datensatz für Stereolithographie

Zusammenstellungszeichnung
- für Stücklistenpositionierung
- für Montage
- für Betriebsanleitungen
- für Kollisionskontrolle
- für Patentzeichnungen

Explosionszeichnung
- mit Positionsnummern für
   - Ersatzteillisten/Kataloge
   - Verschleißteilliste
- mit Materialnummern für
   - Montageanleitung
   - Baugruppenübersicht

Technische Illustration
- für Kataloge
- für Werbezwecke
- für Prospekte

icon_top02
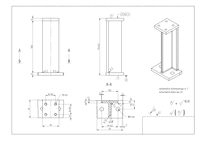
Fertigungszeichnung Schweißteile
Fertigungszeichnung Gußteile
Zusammenstellungszeichnung
Explosionszeichnung
Explosionszeichnung
Technische Illustration
Technische Illustration