Konstruktion

Wir konstruieren:

Schwenkbühne

Schwenkbühne ausfahrbar sowie seitlich verfahrbar

  • Bühnen
  • Übergänge
  • Gleisanlagen für Fahrsysteme
  • Hebezeuge
  • schwenkbare Bodenöffnungen
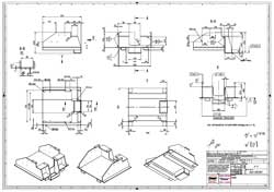
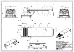
Konstruktion Schwenkbühne

Zum Vergrößern der Konstruktionszeichnugen mit der Maus auf das jeweilige Bild klicken

Konstruktionszeichunung Schwenkbühne
Konstruktion Schwenkbühne
icon_top10